ADVERTISEMENT
Safety Harbor Main Street: A Catalyst for Small Town Urban Revitalization08-04-08 | News

Safety Harbor Main Street: A Catalyst for Small Town Urban Revitalization

By Ronald R. Sill, RLA, ASLA, Community Design Service Group Leader for Reynolds, Smith and Hills, Inc. (RS&H), a leading facilities and infrastructure consulting firm






The reconfigured streetscape incorporates a safe and interconnected pedestrian environment, straight-forward vehicular circulation and built-in transit stops throughout. New curb bump-outs at the end of each block provide ?EUR??,,????'??traffic calming,?EUR??,,????'?? planting opportunities and safer pedestrian crossings. Concrete drop curbs were added as part of the new drainage design.


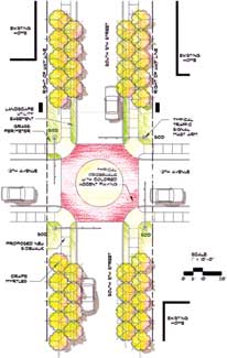
The Main Street streetscape for the city of Safety Harbor, Fla. was envisioned to accomplish several objectives. Functional goals included the general rehabilitation of the street itself, reconstruction of sidewalks along both sides of the street, traffic calming and lighting enhancements.

From the business perspective, maintaining onstreet parking and creating a comfortable environment for shoppers was vital. Community leaders were also committed to reinforcing and protecting the unique identity and character of downtown Safety Harbor.






The reconfiguration of Main Street included new curbs that concisely defined on-street parking areas. By narrowing the travel lanes and maintaining 8.5-foot wide on-street parking spaces, several feet of new sidewalk was recovered within the right-of-way.


The reconfiguration of Main Street included new curbs that concisely defined on-street parking areas. By narrowing the travel lanes and maintaining 8.5-foot wide on-street parking spaces, several feet of new sidewalk was recovered within the right-of-way. New curb bump outs at the end of each block provided traffic calming, planting opportunities and safer pedestrian crossings. Concrete drop curbs, added as part of the new drainage design, delineate travel lanes from on-street parking spaces.

By working with business owners along Main Street, the new wider sidewalk was made wider still in some locations by extending the streetscape improvements beyond the right-of-way line to the face of adjacent buildings. Extensive coordination was maintained with all Main Street businesses, and particular attention was given to ensure vehicular access for deliveries and off-street parking. The sidewalk is six inches thick and reinforced in locations where vehicles are expected to cross.

The character of the community has been preserved and strengthened throughout the project. The consistent use of materials and amenities along 10 blocks of Main Street has established a unifying theme. The street connects homes, businesses and open spaces. Main Street itself has become an important civic resource and is the setting for intimate evening strolls and well as large community events.






????bove and Below: RS&H was the prime design consultant, providing design and construction drawings for 10 blocks of Main Street in Safety Harbor, Fla. Project elements included site furnishings, lighting, planting, hardscape elements, roadway construction and utility relocations. A significant portion of the project involved coordination with businesses and property owners.


img
 



Durable materials have withstood the test of time in Safety Harbor. Ten years after its construction, the project continues to be in identifying feature of the thriving community. One example is the street bricks that highlight major intersections. In an effort to reuse construction material, bricks from the original street were reinstalled as accents along Main Street. These bricks recall the history of Safety Harbor, provide traffic calming and reduce the overall cost of new pavers for the project.

Transportation and connectivity improvements are an important aspect of Safety Harbor Main Street. The reconfigured streetscape incorporates a safe and interconnected pedestrian environment, straightforward vehicular circulation and built-in transit stops throughout.

The Safety Harbor streetscape project has achieved the goals that were established at its inception. As a result, Main Street has provided a solid foundation for the continuing growth of the community of Safety Harbor.






Bricks from the old roadway were reused as decorative accents to the concrete pavers at the intersections and as sidewalk inlays. Note the curb cuts with a textured finish in the middle for better footing. Native plantings (Indian Hawthorne, red Bougainvillea, King Sago, Bird of Paradise) reduce irrigation needs. Canape trees (crape myrtle and live oak) were planted throughout the project to create ample shade for pedestrians.


Safety Harbor streetscape design is?EUR??,,????'???

Sustainable – Bricks from the old roadway were reused in the decorative intersections and sidewalk inlays. Native planting was encouraged to reduce irrigation needs. Also, canopy trees were planted throughout the project to provide ample shade to create a pleasant pedestrian environment while reducing the heat island effect.

Market Friendly – The new streetscape provides access to existing buildings, parks and plazas while also encouraging new growth on adjacent properties. Since the completion of this project, there has been a host of new construction and new tenants in older buildings.






Functional goals included the general rehabilitation of the street, reconstruction of sidewalks on both sides of Main Street, traffic calming and lighting enhancements (Welsbach Lighting).


Adaptable – Connections to adjacent parks, plazas and other public spaces have encouraged gatherings and markets along the streetscape project.

Responsive to Community – The streetscape provides informal places to see and be seen and meet your neighbors within the community. Signage also allows for community identity and banner placement for special events.






The sidewalk is six-inch thick concrete and reinforced at driveways with welded-wire fabric (mesh of steel wires).

View Full Size Image


Transportation Minded – Traffic calming measures have created a safe place for pedestrians, bicycles and automobiles. Several bus stops and a bus shelter further encourage a multimodal transportation experience within the community.



?EUR??,,????'??The Safety Harbor streetscape project has achieved the goals that were established at its inception. As a result, Main Street has provided a solid foundation for the continuing growth of the community of Safety Harbor.?EUR??,,????'??








About Safety Harbor






Safety Harbor is a small city (pop. 17,203) of tree-lined streets on the west shore of Tampa Bay in Pinnellas County, Fla. (that?EUR??,,????'???s on the gulf side, about half way down the state). Hernando de Soto explored the bay and its environs in 1539, whence he came upon mineral springs he named Espiritu Santo. De Soto, like Ponce de Leon, apparently believed in a ?EUR??,,????'??Fountain of Youth.?EUR??,,????'?? The springs, five in number, were a resource for the Tocobaga and Timucuan Indians around 1400, and in the early 1900s its waters were bottled. Today, the springs, which produce about two million gallons each month, are a U.S. Historical Landmark, a Florida Heritage Landmark and a source of drinking water and mineral baths for guest at the resort spa built over the springs (the springs are channeled into one source at the spa).






Project: Main Street, Safety Harbor, Fla.

Key Team Members:

  • Reynolds, Smith and Hills, Inc. (RS&H)
    RS&H was the prime design consultant, providing design and construction drawings for 10 blocks of Main Street in Safety Harbor. Project elements included site furnishings, lighting, planting, hardscape elements, roadway construction and utility relocations.
    A significant portion of the project involved coordination with businesses and property owners.
  • Herbert-Halback, Inc. (now HHI Design)
    HHI developed the master plan for Main Street and served as a significant subconsultant on the RS&H team during design. Fred Halback, who served on the Herbert-Halback, Inc. team for the master plan and design, now owns and manages Halback Design Group, Inc.
  • David Conner & Associates
    David Conner & Associates assisted the city with the subsequent downtown business signage program and two streetscape extension projects. Before forming his own firm, David Conner worked on the original streetscape design project while at RS&H.
  • Other Members
    Irrigation Concepts, Inc.
    Professional Services Industries, Inc.
    Suncoast Land Survey, Inc.
    Wade Trim; and James Beverly, Jr. (now with RS&H)

Plant Palette

  • Trees
    East Palatka Holly
    Red Crape Myrtle
    Treeform Ligustrum
    Live Oak
    Glossy Privet Tree Form
    Standard Majestic Beauty Raphio
  • Palms
    Sabal
    Medjool
    Roebelenii
    Washingtonia
  • Shrubs
    Indian Hawthorne
    Red Bougainvillea
    King Sago
    Bird of Paradise
  • Groundcover
    Asiatic Jasmine
  • Annuals
    Annual/Seasonal Color
  • Sod
    Bahia
    St. Augustine

Manufacturers/Vendors

  • Welsbach Lighting
  • Victor Stanley
  • Dura Art Stone
  • Pine Hall Brick
  • Coloroc Materials
  • Bloom Masters Planters
  • Materials List

    • Concrete paving
    • Concrete block (split face)
    • Brick (red)
    • Brick (beige)
    • Asphalt paving
    • Iron / wood benches


    img