ADVERTISEMENT
LCDBM December 2010 Outdoor Living: Small Project Becomes Case Study in Design Best Practices11-30-10 | News

Small Project Becomes Case Study in Design Best Practices

By Chris Mordi, Vice President of Communications, Kalamazoo Outdoor Gourmet




Positioning this new outdoor kitchen under an existing pergola and its support pillars proved to be the most challenging aspect of the project. the kitchen grew from a simple replacement to a full outdoor kitchen that included a new, more powerful hybrid grill, a cook top burner, a countertop pizza oven, cabinetry and refrigeration.

When John Horgan of his self-named design firm in San Diego, Calif. set out to tear out and replace a client's patio cooking space with an outdoor kitchen, he didn't think he was creating a case study in design best practices. He simply wanted to deliver on a project that would fit his client's new lifestyle and blend seamlessly with the home's already existing architectural elements.




img
 


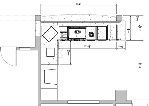
The new design for the outdoor kitchen at this Southern California residence saw several iterations until the homeowner approved the final drawing. Additional storage space was gained by including a three-drawer cabinet as well as a cabinet under the new, more powerful cooktop. A fire box at the far right of the drawing was built to store wood for use in the hybrid fire grill.








''The job was not originally envisioned to be big, just replacement work,'' said Horgan.

But it became larger as he and his client discussed the project, ''it took about a month-and-a-half to come to the final decision,'' Horgan said. The most complex part of the job was determining how the new outdoor kitchen would fit under an existing pergola and between its support pillars.

Horgan said one of the big parts of a remodel is keeping things neat.
Sometimes it's easier to tear down and rebuild,'' he said. Since the client's home was relatively new, tear down was not an option. Horgan said the kitchen grew from a simple replacement to a full outdoor kitchen that included a new, more powerful hybrid grill, a cook top burner, a countertop pizza oven, cabinetry and refrigeration.

With a pergola already in place, Horgan's first step was to determine the location of the grill. After that, all of the other pieces would fall into place. Because the grill was so much more powerful than the one it was replacing, he had to bump out the cooking area approximately 18 inches beyond the overhead structure.







The back of the grill faces the pool area. Prior to the rebuild, a small amount of counter space between the back of the grill and the island wall offered little protection to passers-by from accidentally bumping into a hot grill. The new construction increases the amount of room from the back of the grill to the counter's edge, making it safer. The light at the top of the pergola beam is an important feature that illuminates the grill's cooking surface, allowing the homeowner to cook after dark.


''This was absolutely the right choice,'' said Russ Faulk, a nationally-recognized outdoor kitchen design educator and vice president of product development at Kalamazoo Outdoor Gourmet. ''Grill placement is critical to the safety and functionality of the outdoor kitchen. Horgan did a masterful job of moving the grill just far enough beyond the pergola to prevent a potential fire.''

Horgan said the entire patio, from the house to the pool, is tough, hard Three Rivers Flagstone. Don Wilson of Wilson Masonry handled the project's stone work. After he and his team traced out the shape of a new kitchen island, they surgically saw cut the flagstone and the four-inch-thick concrete slab they rested on.







The new outdoor kitchen fits snugly between two pillars that support a pergola. Designed to look like it has always been a part of the home, it replaced an earlier, smaller outdoor cooking space. Strategically sited, it is located far enough from the pool to give guests enough room to comfortably walk between the new, cantilevered counter and the pool.


He replaced it with a new 12-inch thick footing. Everything had to be cut and dug very carefully because Horgan didn't want to have to replace any of the existing individual flagstones. His goal was to cut and pour perfectly so that once the island was built, the stones that were used for its veneer would cover the cut in the floor, making the island look like it has always been in the new location.

Wilson said the new footing served a secondary purpose - a smooth, level surface on which the outdoor equipment could be installed. While the footing was being poured, Horgan added rebar that rose vertically out of the concrete and serve as the skeleton over which cinder blocks would be placed, making up the wall for the outdoor kitchen.

The island wall was deliberately overbuilt to accommodate the area's penchant for earthquakes and to accommodate the heavy granite main countertop as well as the cantilevered counter for the guests.

Additional design details took into account seating for the homeowner's guests. Horgan said he included two feet of space after the countertop ''because in a space like this, people are usually lounging instead of eating - they are taking in the views of the pool and the mountains.''

He also maintained three to four feet of space between the backs of the chairs and the pool - enough space for two people to pass each other or walk side by side comfortably.

The project took a total of four months, including planning and construction.

''We took the time to do it right because one of the hallmarks of my work is that it blends seamlessly with the existing elements,'' Horgan said.

img