ADVERTISEMENT
LASN Technology August 200608-03-06 | News



Getting Started with VectorWorks

By Scott Weinberg, FASLA, Technology Editor, University of Georgia, Athens






FIG 1-The Basic tool bar is simple to use and similar to most CAD programs. Using the 2D Selection Tool, click on the object to select it. Photos courtesy of Nemetschek

View Full Size Image


When I was first introduced to AutoCAD about 20 years ago, I thought learning the program would be a somewhat impossible task. Of course I had to make a choice whether to use some of the self help tutorials or attend a class with a live instructor. In those days the programs did not reinvent themselves every 12 months, so getting a decent tutorial book was fairly common.

The authors usually had at least 12 to 18 months to get the instruction books together before the release of the program. Today, most CAD programs are coming out with new releases every year and it is difficult to get a good, hands-on tutorial to help get started on learning a new program. To be up front, I always recommend that you train with an instructor, rather than learn on your own through a tutorial method. However, to be realistic, many times there are two major obstacles to training with an instructor: cost and time!






FIG 2-Rotating and Fillet commands are almost identical to what you would find in AutoCAD. Use the Rotate Tool to turn the shower into the correct position as shown. Use the Fillet Tool and the Fillet and Trim mode to round the desk corners to a 4-inch radius.

View Full Size Image
img
 

As stated in the previous VectorWorks article, I am a long-time AutoCAD user. Being asked by the LASN editor to review the VectorWorks product was a real challenge. After all, I hadn?EUR??,,????'???t learned another ?EUR??,,????'??high end?EUR??,,????'?? CAD program in many years and had heard only positive things about VectorWorks. So far the learning curve has been keeping me busy. Not that the program is hard to learn. The package that I received came with two types of training manuals or guides. The first was a disk accompanied by a printed manual. The second training aid was a set of CDs that you pop in your drive and it walks you through the steps in the program.

Being visual, I thought using the CDs would be the best introduction to the training that I could have. I was wrong. First I had some trouble trying to stop the CD and work out some of the things that were presented. I finally had to open the CD on my laptop, place it next to my desktop and try to keep up that way. It didn?EUR??,,????'???t work. I was constantly moving between computers and did nothing but get a little frustrated.






FIG 3-Using the 2D Reshape Tool, you can clean up and connect contour lines on your projects. Use the 2D Reshape Tool to connect the broken contour lines. Next, use the Compose command in the Modify menu to create one polyline. Use the Connect/Combine Tool and the Dual Object Combine mode to join the road lines. Photos courtesy of Nemetschek

View Full Size Image


The saving grace to my introduction to VectorWorks was the written, hard copy manual, with its own training CD. I was able to work at my own pace. I stopped for a while, answered the phone and did my other normal daily activities. Then I returned to the exact spot I left and continued learning how to use the program. The manual and CD complemented each other perfectly. There was a simple and straight forward methodology between the two that allowed for a seamless flow of knowledge.

The saving grace to my introduction to VectorWorks was the written, hard copy manual, with its own training CD.

Starting to learn a new program is like learning another language. For example, if you just began to learn Spanish, every time you would want to say the word yes, you would say s??. Every time you would hear the word s??, you would translate it to the word yes in your mind. The same concept will be necessary when trying to learn a second or third CAD program. Starting off with some basic VectorWorks terminology would be of great help. Here are about a dozen terms that would be necessary for you to understand before trying to draw your first line.






FIG 4-Setting a house on an existing lot is easy using the commands in VectorWorks.

View Full Size Image


The cursor is your pointer on the screen. VectorWorks has different cursors depending upon the action being taken. Here are a few examples of cursors:

  • Selection Cursor?EUR??,,????'??+occurs when you place the active cursor over or next to an object.
  • Snap Drag Cursor?EUR??,,????'??+is visible when the object is being held by one of the snap points.
  • Resize Cursor?EUR??,,????'??+used to drag a point on a selected object to stretch the oject to another size.
  • Pointing?EUR??,,????'??+holding the cursor over an object.
  • Pressing?EUR??,,????'??+holding down the mouse button without moving the mouse.
  • Clicking?EUR??,,????'??+is pressing and releasing the mouse button quickly. (we all knew that one).
  • Selecting?EUR??,,????'??+clicking on an object to see the selection handles. (Handles are like AutoCAD grips).
  • Deselecting?EUR??,,????'??+clicking on an empty part of the drawing so that the selection handles are no longer visible. (In AutoCAD you would use the ESC key to perform this function).
  • Dragging?EUR??,,????'??+pointing to an object, pressing and moving the mouse with the button held down.
  • Marquee?EUR??,,????'??+the selection box made by dragging the cursor across the page (similar to rubber band box).
  • Double Clicking?EUR??,,????'??+two clicks of the mouse in rapid succession.
  • Right Clicking?EUR??,,????'??+pressing the right button. This displays context sensitive menus and commands.






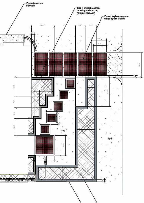
FIG 5-Completing a detailed site plan with dimensions can be done quickly.

View Full Size Image


Pay attention to a basic premise in creating a basic object and/or drawing using VectorWorks vs. AutoCAD. Within VectorWorks it is better to learn how to draw using surfaces, rather than using lines and arcs. This allows the objects being drawn to be filled with color, hatch patterns, gradients and other finished drawing touches. It also allows you to add textures to a 3D object. This is a vastly different approach than AutoCAD.






FIG 6-Comands that allow you to fly or walk through a 3D design are available at the click of the button.

View Full Size Image


In future articles regarding VectorWorks, you can expect information on how plants and planting designs are accomplished using the program. You will also see an article next month, involving interviews of some of the top executives at VectorWorks comparing their product to other products on the market.






img