ADVERTISEMENT
Landscaping the University of Wisconsin06-01-03 | News



Landscaping the University of Wisconsin

By Sheri Rice, Flad and Associates






Landscapes facing residential areas were given special consideration. Before (inset), there was only a chain-link fence separating the campus from the residential sidewalk. The wider sidewalk, increased tree canopy and new fence are goth aesthetically pleasing and a continuation of the campus design theme.


Tradition. Culture. History.

All of which had to be considered by Flad and Associates when they designed the landscape for the University of Wisconsin-Madison?EUR??,,????'???s Engineering
Centers campus.

In an interview with LASN, Lead Landscape Architect Craig Schiestl, noted that work began on the project in 1999. While the bulk was completed in 2002, there are other elements of the campus where future construction is planned. The goal of the project was to maintain the tradition, culture and history of the campus while designing a new landscape.

?EUR??,,????'??We were trying to create a sense of place,?EUR??,,????'?? said Schiestl. ?EUR??,,????'??We will continue to see the evolution of this side of campus.?EUR??,,????'??






The site plan maps out the overall project involving the Engineering Centers (EC). Breese Terrace is the residential walkway pictured on the previous page. As seen above and below, the Engineering Mall was designed to be a gathering place for engineering students and faculty.







The scope of work for the project included full-service landscape architectural site analysis, planning, and design work for the Engineering Centers (EC)-a new multi-disciplinary, educational/research facility of approximately 204,000 gross square feet. The project, located at the western edge of a major Midwestern university, creates an important transitional space between the campus, an adjacent residential neighborhood, and an historic church. The project occupies a highly visible corner location, and anchors a prominent gateway to campus.

Work effort focused on the following areas:

  • Site selection; building configuration and orientation

  • The definition of pedestrian, bicycle, and vehicular circulation, including entry sequence to the facility
  • The design of transitional elements on the neighborhood edge
  • The development of outdoor spaces and streetscape improvements
  • A thorough, well conceived response to a challenging cross-site grade drop

In this urban environment, emphasis was placed on the planning and design of public spaces that are adaptable to a variety of uses, and that are able to ?EUR??,,????'??carry?EUR??,,????'?? high volumes of foot and vehicle traffic.

Planning & Design Philosophy

The purpose of the project is to co-locate a variety of departments and student spaces that were previously scattered throughout the campus to foster interaction and to establish community among academic staff, students, and representatives of business and industry. A realized goal of the site development is the creation of an out-of-doors ?EUR??,,????'??sense of place?EUR??,,????'?? for student and staff gathering that is central to a number of buildings and functions.






A scale rendering addresses image concerns, such as character, materials, colors and textures.


?EUR??,,????'??The new Engineering Centers is meant to be a gathering point,?EUR??,,????'?? revealed Schiestl. ?EUR??,,????'??It?EUR??,,????'???s a place for engineering faculty and students to meet.?EUR??,,????'??

Attention was given to creating a seamless transition from interior to exterior spaces, which allows maximal use of each for program functions. Landscape architects were actively involved in the process from inception to completion, and were major contributors in establishing design direction, the presentation of design ideas at a variety of forums, and the documentation and implementation of the project.

Unique Factors

The project addressed a variety of unique factors involving stewardship, wise planning, and artful design of cultural and natural environments.

Stewardship

In plaza and street front locations, urban-tolerant, drought resistant, low-maintenance/high visual impact plants were selected to conserve resources, reduce maintenance, and ensure longevity. Structural soil ensures vigor in harsh conditions.




img
 

A conceptual drawing of the Breese Terrace Streetscape reveals the planned fence and treeline, along with a slope that would be developed and landscaped.


Abutting street frontage at the west side of the site, an embankment supported a mix of vegetation buffering the neighborhood from University facilities. In working with University and neighborhood groups, a plan was devised to selectively thin overstory trees and clear invasive species. Plantings included an evergreen hedge row at the embankment?EUR??,,????'???s crest. Carefully sited understory and overstory trees complement remaining vegetation. The steeply pitched embankment, planted with a naturalized grass/wildflower mix, eliminates erosion, limits maintenance, and provides seasonal display. Steepened grades allow space for streetscape improvements, including street trees.

Wise Planning

The degree and complexity of coordination with various civic, municipal, and state entities posed a challenge. Numerous meetings were required to gain approvals.






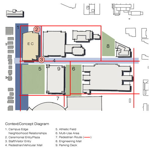
The concept diagram outlines the overall design goals for the Engineering Centers at the University of Wisconsin.


The project, viewed in context of the master plan, required early and comprehensive planning. Relationships between existing and future buildings were studied to create exterior spaces for present and future functions.

Redefining and improving the image of the campus edge and its relationship to the abutting neighborhood required careful planning and thorough discussion. The diversity of land use and architectural style found in the vicinity of the site provided a high level of contextual complexity. Issues included the nature of vegetative buffer, maintaining sight lines to an adjacent historic church, and methods of mitigating the scale differential between academic buildings and neighboring residences.






The crew works on stairs and hardscape in front of the historic church site.


Another issue taken into consideration was the fact that much of the construction would be taking place while school was in session. Accessibility to campus and nearby buildings was a concern. ?EUR??,,????'??We had to maintain a public walk on the north side throughout the lifetime of the project,?EUR??,,????'?? said Schiestl.

Artful Design

A primary purpose of the project was to build a sense of community and to create a ?EUR??,,????'??meeting place?EUR??,,????'?? for staff, students, and representatives of business and industry within the College of Engineering. Clarity of entry sequence, destination, and visibility were very important. The character of the architecture and site work convey the image of the College to the University, and the public. Exterior spaces were designed to be inviting, highly functional, and able, to accommodate a variety of uses ranging from circulation zones capable of supporting high volumes of foot and vehicle traffic to outdoor exhibition space for expositions.






Hardscaping to create a multiuse throughway was a major part of the planning and design.


Material selection and design composition are compatible with the historic character of adjacent buildings, while providing imagery of 21st century technology.

?EUR??,,????'??This particular project, just by virtue of its urban location, was geared a bit more toward hardscape design,?EUR??,,????'?? said Schiestl.

A grade drop of 26 feet across the site required the thoughtful planning of cross-site circulation, ADA accessibility, building siting, and grade relationships at the building perimeter.






The Southeast entry/passage zone was lit to be displayed for safety and aesthetics during the night.


A state-sponsored project must reflect the judicious use of taxpayer monies. The artistic use of site elements, materials, and forms undergo continuous review to gain acceptance based on maintenance requirements, life cycle costs, longevity, and appropriateness to campus, and civic context.

Naturally, maintenance is always a concern on a completed project. Flad and Associates chose maintainable colored and patterned concrete as well as drought tolerant foliage.






The hardscape design at the North Plaza was entirely new construction. Strong efforts were made to maintain a cohesive transition to the historic church at the top of the stairs.


?EUR??,,????'??This is not an expensive, high-maintenance budget item for the university,?EUR??,,????'?? revealed Sheri Rice, Media Relations for Flad and Associates. ?EUR??,,????'??We designed something that they will be able to maintain and use.?EUR??,,????'??

Role of the Landscape Architect

Landscape architects were actively involved in the project from inception to completion, and contributed significantly to its success. As a member of a multi-disciplinary team, the following comprehensive site planning, and design services were provided:






The foliage used is drought tolerant; however, much of the project revolved around the hardscape design around the Engineering Centers.


Discipline-specific duties included: Documentation of sitework from concept through construction phases. Hardscape design included stone and precast concrete-clad site walls, steps, pavements, traffic bollards, and rail/fence systems. Planting design included plant selection, and the research and specification of structural soil for streetscape plantings:

The project was also used as a vehicle to facilitate an internal mentoring program for junior staff. Career development opportunities included: observation/involvement in the design process, construction observation, participation in shop drawing review, punch list development, and the coordination of construction period activities.

  • Active participation in establishing project concept, including planning lead on site analysis, site selection, and planning option evaluation;
  • Design lead on exterior development, including spatial organization, site circulation, hardscape detailing, the selection of construction materials and site furnishings, plant selection and design, and specification coordination.
  • Planning and design presentations to a variety of civic, municipal, and state-sponsored groups, including neighborhood associations, city alders, urban design committees, municipal departments, campus planning staff, and user groups.

Discipline-specific duties included:

  • Grading concept and documentation, which included relationships to existing buildings, roadways walks, and the selection of building floor elevations;
  • Administration duties included response to contractor requests for information, shop drawing review, observation reports, and punch list documentation.

Collaboration with other disciplines included:

  • Architects regarding the integration of building, and site development;
  • Structural engineers regarding design of walls, pavements, and site items;
  • Electrical engineers regarding exterior lighting design;
  • Mechanical and plumbing engineers regarding the routing, and sizing of site utilities.

1. North Plaza

Separation of upper and lower plazas provides spatial diversity

Building setback/plaza design maintain sight lines to the church

Plantings define movement relate to curved facade of the building

Seating on steps, walls, and stone cubes encourages gathering

Lighting in walls for design accent and safety

Decorative stainless steel and stone bollards for traffic control

Plant selection for seasonal interest and low maintenance

Patterned, colored concrete provides interest and low maintenance at judicious cost






A rendering of what the final project would eventually look like. Designers noted that the ultimate design remained very close to the original concept.


2. Breese Terrace Frontage

Street trees mitigate scale differential between academic facilities, and residential architecture, and provide pedestrian-scale spatial qualities

Use of structural/engineered soil allows root growth in a harsh, urban environment

Precast concrete walls accommodate grade change against the building

Coordination/integration of site design with architectural details

Planted embankments soften building edges, and provide grade transition

Responds to neighborhood parking, pedestrian, and vehicular traffic concerns

Enlarged walk carries increased pedestrian volumes at special events

Terrace improvements define the campus edge and enhance image

Planting design buffers residential use from University facilities

3. Southeast Entry Plaza

Design relates to architectural cues, frames sight lines, and directs movement
Raised plant beds separate pedestrian from vehicular traffic

Building and site development anchor the western terminus of Engineering Mall

4. Passage Zone (Partial Construction)

Separation of pedestrian, vehicular, and bicycle traffic; bicycle parking is provided

Facilitates cross-campus connections; building entries front a circulation spine
Service functions are incorporated and concealed within the zone

Mall-like character: site furnishings, and materials provide a unifying theme

Spaces are designed for multiple use. Plantings reinforce circulation patterns and soften the composition of spaces






A retaining wall houses a low maintenance bed for vegetation to add color and life to the project.


5. Athletic Practice Field

Expanded playing surface; improved drainage; regrading improves ?EUR??,,????'??playability?EUR??,,????'??

Provided permanent storage facilities

Embankment improvements included removal of invasive species and replacement with naturalized planting to reduce maintenance






Hardscape is mixed with drought-tolerant vegetation.


6. Multi-Use Area (Future Construction)

Outdoor space programmable for a variety of civic and University-sponsored events

Use of porous pavers to maintain lawn while allowing for special event parking

Landscape concept buffers view of adjacent service functions and defines circulation

Provision for College-sponsored commemorative sculpture

Site furnishings include banners, pedestrian-scale lighting, and seating

Entry court for adjacent Department of Collegiate Athletics building

Provides game day parking of broadcast and service vehicles for adjacent stadium/



–––––––––

Project Team:

Flad & Associates (architect of record), in association with Kohn Pedersen Fox (design architect), and GPR Planners Collaborative (lab planner)

Flad Design Team:
Principal-in-Charge – Jerry Polly, PE
Project Manager – Michael Thomas, AIA
Project Architect/Design Coordinator – Javier Garay, Assoc. AIA
Project Architect – Craig Weise

Kohn Pedersen Fox Design Team:

Principal in Charge – William Pedersen, AIA
Design Principal – Greg Clement, AIA
Lead Designer – Robert Goodwin, AIA
Project Architect – Michael Gallin, AIA
Project Archiect – Phillip White

Engineers:
Structural Engineer – Dave Provencher, PE Tom Boehnen, Jr., PE
Flad Structural Engineers – Flad Structural Engineers, Madison, Wisconsin Madison, Wisconsin

Site Planner/Landscape Architect:
Craig Schiestl, ASLA and Jeff DeLaura, ASLA
Flad & Associates
Madison, Wisconsin

Mechanical, Electrical, and Piping Engineer:
Affiliated Engineers
Madison, Wisconsin

Lab/Cleanroom Design:
Josh Meyer, RA
GPR Planners Collaborative, Inc.
Purchase, NY

General Contractor:
J.P.Cullen & Sons
Janesville, Wisconsin

Photographer:
Scott McDonald, Hedrich Blessing
Chicago, Illinois

Project Information Provided by Sheri Rice, Flad and Associates


img