Products, Vendors, CAD Files, Spec Sheets and More...
Sign up for LAWeekly newsletter
Nowadays, real science is happening in the spaces between the disciplines
It isn?EUR??,,????'?????<???EUR?t the everyday campus project that requires the institution, the architects, and the landscape architects to become so inextricably intertwined that the needs and technical issues of one radically affect the others on a day-to-day basis. Yet this intense engagement has led to an award winning design at Harvard that not only perfectly mirrors the feeling the institution wanted to build, but is a metaphor for the synthesis of transparency and interconnectivity of Harvard?EUR??,,????'?????<???EUR?s scientific community.
Creating two new buildings in Harvard?EUR??,,????'?????<???EUR?s Life Sciences complex while trying to complement ?EUR??,,????'?????<???(R) but not compete with ?EUR??,,????'?????<???(R) the rich traditional buildings of the Cabot Science Complex and the Peabody Museum, required a level of synthesis that was an exquisite challenge. The Naito Chemistry Laboratory and Bauer Laboratory Building and Center for Genomics Research were designed by Ellenzweig Associates, Inc. to be an integrated complex for learning, research and the exchange of ideas.
The landscaping had to reflect that same synthesis of ideas. Frisbie Place was formerly a 34-space parking lot next to the Peabody Museum and the site of many frisbie games?EUR??,,????'?????<???(R)hence the name. The original Cabot Courtyard had no gathering places to speak of. This new unifying landscape, the connective tissue for the Science Complex, was created by Reed Hilderbrand Associates, Inc. ?EUR??,,????'?????<?Creating pathways as well as open space were the driving force behind the landscape design,?EUR??,,????'?????<? said John Grove of Reed Hilderbrand, and the Project Manager and Project Designer for the complex. ?EUR??,,????'?????<?Both Cabot Courtyard and Frisbie Place now pull together all the buildings in the Science Complex as well as the students, research fellows and faculty.?EUR??,,????'?????<?
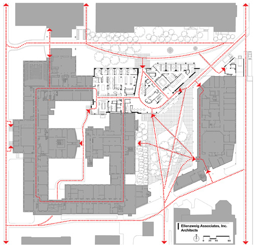
There were initially three major design priorities for this project. First, the formerly disconnected buildings had to be united to complete the quadrangle of the Cabot Science Complex. The key challenge here was to reconcile the contemporary architecture of the new buildings with the traditional architecture and landscaping of their immediate neighbors. At the same time, the landscaping had to provide for ease of access as well as places conducive to interaction. Geometric patches of lawn, groves of tulip poplars and sweet gums, lines of river birch and red bud, long black granite benches and umbrella shaded caf????????(C) tables all create opportunities for casual interaction and relaxation outside the labs.
Both courtyards are surrounded by old and new buildings, and are a major node of circulation. They create an intersection of traffic between the scientists and researchers, and the buildings that house them: biology, physics, engineering, chemistry, robotics, genomics, computer science, a Center for Mesoscale Structures and laboratory spaces for everyone. The technical difficulties of trying to shoehorn all this into a tight space meant, inevitably, that a majority of the building space?EUR??,,????'?????<???(R)forty-thousand square feet of it?EUR??,,????'?????<???(R)had to go underground. That in turn created a complex set of requirements for the landscape architects. Not only was the landscaping on a rooftop, it had to integrate two separate spaces maintaining the same feel. By using similar materials the two outdoor spaces were effectively unified into one.
The exterior glass distinguishes the Naito and Bauer buildings from their more introverted neighbors, however this transparent facade also reflects the trees, sky and historic buildings all around it. This visually blends the traditionally isolated sciences of our grandfathers, and mirrors the transparency of today?EUR??,,????'?????<???EUR?s collaborative sciences. The new buildings choreograph an ever-changing dance of images that flicker and blend as one moves along the pathways from building to building. The reflected recombination of trees, sky and architecture mirrors yet another dimension of the changes and advances going on inside.
This freedom of movement between the buildings, as well as between those who work and study in them, had to be an integral part of the landscape design. ?EUR??,,????'?????<?Nowadays, real science is happening in the spaces between the disciplines,?EUR??,,????'?????<? said Dominick Roveto, AIA, of Ellenzweig and Associates, Inc., and Project Architect. ?EUR??,,????'?????<?For that to work the scientists need to congregate...and it?EUR??,,????'?????<???EUR?s actually working, too.?EUR??,,????'?????<? The outdoor courtyards and caf????????(C) seating encourage a collaborative scientific community. The courtyard is now a magnet where movers and shakers are always coming through, stopping to chat, grabbing a sandwich, or just sitting and having coffee.
The key challenge was reconciling a contemporary architectural expression with the more traditional language of the neighboring buildings. The combination of red sandstone panels, brick, grass and a groundcover of English ivy and witch hazel complements the red brick and limestone of the older buildings. Photo courtesy John Grove, Reed Hilderbrand Associates, Inc.
Flattening the area in Cabot Courtyard was necessary because it was a rooftop. That in turn required re-grading the edges. The buildings on the East side, however, were on higher ground. ?EUR??,,????'?????<?We had to design access to an existing doorway entry that ended up being 12 feet above the rest of the courtyard,?EUR??,,????'?????<? said John Grove. ?EUR??,,????'?????<?By installing a retaining wall at the base, we were able to use the deeper soil bed to add a band of spirea and red bud on either side of a staircase leading up to the entrance.?EUR??,,????'?????<?
Part of the complexity of the retaining wall, and the rest of the hardscape was that some of the wall was on rooftop and some was on earth or gravel. This affected the kinds of trees and plants with which they could work. ?EUR??,,????'?????<?Planting over a rooftop meant the choices had to withstand unusual temperature fluctuations,?EUR??,,????'?????<? explained Mr. Grove. ?EUR??,,????'?????<?Heat given off by the underground buildings meant rapid freezing and thawing, so the choice came down to sweet gum and river birch which are both tolerant of rapid freeze/thaw cycles. The birch trees were placed adjacent to the heat ducts that vented up into the courtyards.?EUR??,,????'?????<?
Before construction, Frisbie Place was a 34-spot parking lot and the site of many Frisbie games?EUR??,,????'?????<??oehence the name. In both images, you can see the Peabody Museum to the right. Photo Courtesy Ellenzweig Associates, Inc.
Once the parking spaces in Frisbie Place were removed for the new pedestrian landscape, the site?EUR??,,????'?????<???EUR?s small canopy trees, delicate ground coverings, deliberate brick paths, and low seat walls are reminiscent of the older quadrangles and yards of Harvard University.
The landscape design of the Cabot and Frisbie Courtyards really underscores the problem that many campuses are facing these days. ?EUR??,,????'?????<?There is an increasing shortage of space on which to build,?EUR??,,????'?????<? said John Grove. ?EUR??,,????'?????<?These space requirements have forced many of the campuses to go underground with their buildings in order to leave as much space as possible for pedestrian traffic, while at the same time maintaining the original ?EUR??,,????'?????<?campus?EUR??,,????'?????<???EUR? feel.?EUR??,,????'?????<?
A large pair of buildings had to be placed on a very small site constrained by the closeness of its neighbors, with the added requirement of a natural landscape that would ease pedestrian traffic between the labs. The requirements of the landscaping, however, conflicted with the high traffic needs of the laboratories and the need to service the facilities.
The technical issues raised by the underground buildings made the landscaping issues even more complex. The basement extends to all the other buildings, so Cabot and Frisbie are landscaped rooftops. However, because of the height of the water table, the basement level couldn?EUR??,,????'?????<???EUR?t go too far down. The landscape architects needed more space for soil between the finish grade and the roof of the basement. But there was no easy solution.
Just below the finished level of the courtyard an insulated, rubber-membrane waterproofing system uses sloped flutes to carry rainwater off the basement rooftop to storm drains along the perimeter of the new foundation. The basement?EUR??,,????'?????<???EUR?s concrete structure had to be engineered not only to carry the substantial weight of the courtyard?EUR??,,????'?????<???EUR?s earth, trees and paving materials, but also to support emergency vehicles.
?EUR??,,????'?????<?The soil depth was limited, and varied between one and three feet throughout Cabot Courtyard. Therefore, the northern part is mostly paved,?EUR??,,????'?????<? stated Mr. Grove. ?EUR??,,????'?????<?To keep the sense of lawns and groves found on the rest of the campus, accommodation of the plantings had to be made for the various soil depths. Fortunately, at the south end the grade pitches to about three feet, and we were able to establish a grove of sweet gum.?EUR??,,????'?????<?
Frisbie Place connects to Cabot Court with a narrow causeway passing between two buildings. It is a main thoroughfare for the Complex. Like Cabot, Frisbie Place has varying levels of soil depth and variation in the sub base conditions. Cabot Courtyard acts as a passageway and as a node of activity and public reception. On Frisbie Place, the proposed scheme rests more squarely in the tradition of Harvard?EUR??,,????'?????<???EUR?s biology courtyards ?EUR??,,????'?????<???(R) mostly lawn, with an emphasis on paved gathering places near building entrances. Between the center path and the arc path, they were able to place a curved lawn and a grove of tulip poplars. Dwarf spirea is planted to the south. To the north, part of which is on rooftop, is English ivy, witch hazel, a row of birch, and behind that, red maples for color.
Reed Hilderbrand directed the hardscaping, including the choice of benches, stairways, paving, retaining walls, handrails, and skylights. The pathways were the driving force. There were three layers to the design: the main circulation paths through the complex, the paths from building to building, and then the open field of paving for gathering and caf????????(C) space. They also needed to incorporate the three circular structural glass skylights in the courtyard, set flush with the lawn, to bring natural light down to the basement laboratories.
Here also, paving issues were raised by the variation of the sub-base conditions ?EUR??,,????'?????<???(R) a combination of natural and compacted soil and roof throughout all areas.To protect against inconsistent settling, a consistent concrete slab was placed throughout all paved areas. Brick was used for the paths. The field paving consists of two-foot square concrete pavers, and four-inch by 12-inch brick for the entry paths.
The benches, stairwells and retaining walls are granite. The smooth black granite benches are also reflective. ?EUR??,,????'?????<?The high hone finish granite brings the sky down to earth and adds life,?EUR??,,????'?????<? said Mr. Grove. ?EUR??,,????'?????<?Although the granite might be considered hot in the summer, on a sunny fall day, the dark stone holds the heat and is very nice to lie down on.?EUR??,,????'?????<?
If the goal was to encourage interaction and transparency among scientists, researchers, and the rest of the campus, Cabot Courtyard and Frisbie Place are the embodiment of that expression. An open space has been constructed entirely over the structure, and a balance has been struck between the paved areas and the large planted areas with their canopy and understory trees for shade and seasonal interest. They now form important links?EUR??,,????'?????<???(R)in more ways than one?EUR??,,????'?????<???(R)on major routes of travel through the science areas of the university.
This project has won three design awards:
Reed Hilderbrand works at the vital intersection of nature and culture. They collaborate with other artists and professionals to help institutions, public stewards, and individuals articulate ideas through landscape. Each project begins with rigorous analysis of the objective and poetic realities of a site and its context, integrating responsible care for the land with the ordinary and extraordinary needs of modern life.
Raleigh, North Carolina
Francisco Uviña, University of New Mexico
Hardscape Oasis in Litchfield Park
Ash Nochian, Ph.D. Landscape Architect
Sign up to receive Landscape Architect and Specifier News Magazine, LA Weekly and More...
Invalid Verification Code
Please enter the Verification Code below
You are now subcribed to LASN. You can also search and download CAD files and spec sheets from LADetails.