ADVERTISEMENT
Forsyth School‚Äö?Ñ????ë?????´?????¬¥?¬¨¬®‚Äö?Ѭ¢s Creative Outdoors06-01-08 | News

Forsyth School’s Creative Outdoors

Stephen Kelly, editor




ABOVE and BELOW: The central playground at the heart of the campus is for the upper grades, with new age-appropriate equipment (Kompan® Galaxy Series) and wood fiber safety surfacing. The slanting and horizontal play equipment with movable steel parts replaced old wooden structures. These social gathering spaces and ajacent sand play areas unify the array of campus activities encompassing the circular walk.
img
 






Forsyth School is a private elementary school located within the urban mix of St. Louis, Missouri. The school’s mission is to provide children with a supportive atmosphere where they can build self-confidence, develop a love of learning, succeed in their studies and build toward their futures.






The master plan design touched upon every usable square foot of school property to maximize the students’ educational experience and improve campus circulation within the urban constraints of the site. Design elements include a drop-off and campus entry, sports field and track, upper school playground, lower school playground, kickball court, sand play and deck, walled garden and gathering circles.

1. Drop Off
2. Entry Gate
3. Playground
4. Kickball Court
5. Sand Exploration
6. Spray Ground
7. Central Play Space
8. Sand Play
9. Outdoor Classroom
10. Pavilion
11. “FieldTurf” Soccer Field
12. Existing Basketball Court
13. Seat Wall



View Full Size Image


With the school’s population growing over the years, there was a need to expand and improve its facilities. The Forsyth School Campus redevelopment plan provided the school with many more creative outdoor opportunities and a comprehensive campus design integrated into the existing school buildings.






Multiple forms of design communications, including renderings, illustrated the design intent for the school’s fundraising campaigns. Top left: The Science Garden. Top right: The parking lot entry gate and gathering circle. Bottom left: The sand play river and deck. Bottom right: The serpentine wall and grove of trees.




The Forsyth School’s Adventure Center features a climbing wall, a ceiling-mounted ropes course with platforms and a high beam mounted 30 feet above the ground. The beam is a rite of passage for the sixth graders, who ascend to the beam and cross it.








The lower school playground, separated from the central playground by the science building, serves the pre-school and lower grade students. The poured-in-place rubber surfacing, tricycle track, eco -shed, butterfly gate, sand play and new play structures (Kompan’s Moments Series, for 2-6 year olds) provide exceptional play value. Note: Can you find the girl playing “dead.”


Since the fall of 2004, Forsyth School has completed nearly $5 million in campus improvements. The goals of the redevelopment design were to provide for educational opportunities, outdoor discovery, recreational facilities and multiple gathering spaces. The master plan has guided the school in phased implementations providing first Falcon Field, a new FieldTurf™ field and track, then a dedicated outdoor classroom and walled garden, and finally new playgrounds with innovative play equipment, sand play and an educational green roof. The layout of the design organizes the campus and designates areas for different age groups and activities year-round while improving overall site circulation.






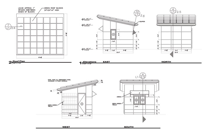
ABOVE and BELOW: The eco-shed clearly represents how the design framework for Forsyth School was consistently multifunctional. The eco-shed provides additional playground storage, houses an educational and experimental green roof, and functions as a backboard for the kickball court. The green roof is composed of portable, 2 ft. by 2 ft. containers fabricated of heavy gauge anodized aluminum with sedums planted in four inches of a growing medium of mineral and organic material.




Forsyth School is truly an original and unique educational facility making increasingly positive impacts on the children of St. Louis and adjacent neighborhoods.






ABOVE and BELOW: An underused residential pool and yard of mulch were transformed into Falcon Field. The sports turf is artificial (FieldTurf™) and uses a silica sand and cryogenic rubber the company says is three times as heavy as competing systems. The sports track (VitriTurf®) is polyurethane based—styrene budadine rubber—from tires, hoses, etc. It is manufactured as a liquid and poured into molds and makes up the base mat. “Virgin” (not recycled) EPDM (ethyl propolyne dione monomer) is the wear course for the track.







Project Purpose/Program

Forsyth School’s campus comprises five historic St. Louis homes renovated into classrooms to serve children from preschool through sixth grade. As the school’s enrollment has continued to grow, the need for an overall campus master plan has become more apparent. What was a retrofit playground comprised of fragmented residential backyards is now a cohesive campus and play experience maximizing every square foot of space for best educational use. The master plan has been implemented in phases, beginning in 2004 with the sports field and track and arts building addition. The comprehensive central campus renovation was completed in the summer of 2007. This phase of the project encompasses innovative new playgrounds—both pre-primary and elementary—that span most of Forsyth’s interior campus.






ABOVE and BELOW: The serpentine concrete seat walls that wiggle their way throughout the elevation changes on the Forsyth School campus bring continuity and offer practical seat heights for the kids along the routes between buildings.









Role of the Landscape Architect

SWT Design led the design team, consisting of Forsyth School administrators, teachers, and students in comprehensive master planning. The responsibilities of the landscape architects included site inventory and analysis, conceptual master planning, design development, cost estimating, graphic support for fundraising, value engineering, construction documentation, construction observation, field design and modifications. SWT Design led an extremely engaging design workshop involving students and staff to assist in determining the school’s needs and appropriate measures to meet those needs. This also included assisting in phased implementation of the master plan and coordinating multiple construction schedules with the constraints of the school’s calendar year and limited use of the school’s campus.






Custom fabricated butterfly gates connect the adjoining church property for use of swings and additional recreational space while creating a secure boundary to the playground.


Special Factors and Significance

Falcon Field: A professional-grade artificial turf field with surrounding track debuted at the start of the 2004/05 school year. The field, which adjoins the outdoor sport court, provides a state-of-the-art space for year-round play, physical education and after-school sports practice. With 85 percent of Forsyth’s students participating in after-school league sports, Falcon Field is an integral part of the campus configuration and host to special events such as graduation ceremonies.






Start your engines. A concrete tricycle track allows children to safely circle the playground on a purposeful path.


The Williams Walled Garden, a faculty-designed, dedicated outdoor classroom, was made possible through the generosity of Susan and Felix Williams III. Whether for studio art, drama, outdoor education or other classes, Forsyth students benefit from this new outdoor learning space that is walled for privacy.






Sand play features were created for both playgrounds, providing a fun play activity for children of all ages. The central playground sand play is designed to represent a stream bed and is lined with boulders and “bridged” by a wooden deck to enhance the play experience.


The most recently completed center of campus project incorporates pre-primary and elementary playgrounds built to honor retired Head Rebecca Glenn, PhD, who led Forsyth School from 1986-2007.






The transformation of materials in this space has greatly enhanced the students’ play experience. Brighter colors, a variety of surfaces, and a grove of bamboo heighten the level of creativity and make-believe and require students to strengthen a greater range of skills.


Overall, the Forsyth School campus redevelopment is a success. By providing colorful and interesting spaces to play and learn, SWT Design met the school’s goals of providing a supportive atmosphere to develop a love of learning, and both students and teachers can enjoy the new campus.






The walled garden, designed in collaboration with the faculty, gives the school a secluded outdoor classroom for studio art, drama, outdoor education, or other classes. Forsyth students benefit from this new outdoor learning space, walled for privacy to create an intimate classroom setting.












ABOVE and BELOW: The multiple brick circles throughout the campus are gathering spaces, nodes for traffic calming and areas for organizing group activities. A flagstone nook bordered by native Missouri rock outcroppings is outside the science building (right). The largest of these places, outside the Rand Center (below), allows for larger student gatherings, using the steps as an outdoor amphitheater.







About SWT Design

SWT Design of St. Louis, Mo. does high quality landscape architecture, urban design and planning. The design team comprises landscape architects, urban designers, architects and horticulturalists, specializing in master planning and the design of parks and recreation, greenways, corporate, retail and academic campuses, streetscapes and design standards, civic amenities, branding and identity, residential communities, private residences and sustainable design.






Parties to the Project

Forsyth School
Michael Vachow, head of school
Rebecca Glenn, former head of school
Brooks Critchfield, owner representative
Lisa Dunaway, director of business affairs
Charlie DiLeo, dir. of capital giving, assist. dir. of admissions
Phoebe Ruess, dir. of communications, marketing
Mr. Dodd, dir. of facilities

SWT Design Team
Jim Wolterman, principal
Ted Spaid, principal
Bonnie Roy, landscape designer
Peter Bobe, landscape designer
Hellmuth + Bicknese
Ralph Bicknese, Eco-Shed architect
Chris Gocal, project manager, Northstar Management
Kadean Construction, general contractor

Midwest Architectural:
Ted Stegeman, metal work
Reese Recreation Products, John Enkelmann
Kompan® – Galaxy Series
Kompan® – Moments Series
VitriTurf® – safety rubber surfacing
Wood fiber surfacing

Landscape contractor/Irrigation contractor
Baxter Farms & Nurseries
Green Roof Blocks
Kelly Luckett, LEED, AP, president
Eco-Shed Green Roof Buckets

Other Materials
Romanstone™ Holland-Stone, Harvest Blend
Unilock® Classico radial paving stone
FieldTurf™ artificial turf
VitriTurf® Polyurethane Track
DeepRoot© – Root Barrier
Concrete/exposed aggregate paving
Flagstone stepping stones
Wood deck






Forsyth School Plant Collage






Seven-son-flower







Yellow grove bamboo







Karl Foerster’s Feather reed grass







Harry Lauder’s walking stick







Celandine poppy







Doublefile viburnum







Hummingbird clethra







Little Henry sweetspire
img