PRODUCT DESCRIPTION

Stunning glass walled spas complete the private cabana experience at this resort hotel. Featuring vanishing edges with acrylic viewing panels, these vessels provide the ultimate in relaxation and entertainment. Accent spa lighting adds the final touch to this inviting hardscape.

Bradford Products

Custom Commercial Spas

2101 Enterprise Drive NE
Leland, NC  28451
910-791-2202
Fax: 910-791-0566
bradfordproducts.com




Models

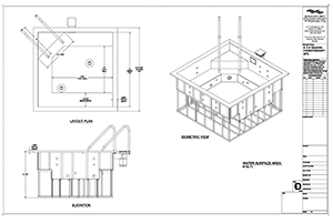
Commercial ???????? Square Hydrotherapy Spa 8??????_-11.770??????_ X 8??????_-11.770??????_ sample

Available Downloads

       



Commercial ???????? Square Spa 6??????_-8??????_ X 6??????_-8??????_ sample

Available Downloads

       



Commercial ???????? Kidney Shaped Spa 7??????_-9.846??????_ X 5??????_-4.776??????_ sample

Available Downloads

       



Commercial ???????? Commercial Polygonal Spa 11??????_ X 11??????_ sample

Available Downloads

       



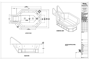
Commercial ???????? Elongated Octangle Spa 11??????_-9.657??????_ X 7??????_-3??????_ sample

Available Downloads

       



Commercial ???????? Round 10??????_-5.12??????_ X 10??????_-5.12??????_ sample

Available Downloads

       



Commercial ???????? Oval 15??????_-5.237??????_ X 10??????_-1.639??????_ sample

Available Downloads

       



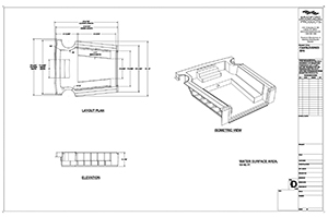
Commercial ???????? Cantilevered Spa 13??????_-9.756??????_ X 12??????_-4.501??????_ sample

Available Downloads