 
	
	PRODUCT DESCRIPTION
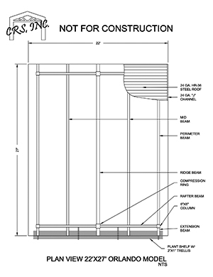
	The simplified design of the Orlando shade shelter results in a clean, economical model, using the same exceptional craftsmanship and high-quality materials that are standard on all of our designs. Cost-effective design. Nearly any size is available both standard and custom. Gable end may be enclosed. Easily customized. Measured eave to eave.
	
 
		
		11875 E. Berry Drive
		Dewey, AZ  86327
		928-775-3307
		Fax: 928-772-0858
		classicrecreation.com
Models


























Related Products From This Vendor