 
	
	PRODUCT DESCRIPTION
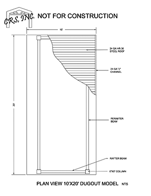
	Our dugout shelter model is available in many sizes and column configurations. The standard model features a 24-gauge HR-36 steel roof, with 24ga “J” channel. Custom models may add tubular steel fascia, heavier 22-gauge steel roof for additional vandal and dent resistance, or for even more protection, a 2″x6″tongue and groove subroof with shingles. Fencing and walls are provided by others. Good visibility, with varying column layouts. Rugged, with heavy-duty roof options. Measured from eave to eave. Nearly any size is available both standard and custom.
	
 
		
		11875 E. Berry Drive
		Dewey, AZ  86327
		928-775-3307
		Fax: 928-772-0858
		classicrecreation.com
Models










Related Products From This Vendor