ADVERTISEMENT
Water as an Interactive Experience07-01-03 | News



Water as an Interactive Experience

By Fung Lee, PMA Landscape Architects








The interactive fountain plaza and children?EUR??,,????'???s spray pad is the centerpiece and first phase of the Forks of the Thames Revitalization Plan in London, Ontario, Canada.

In 1998, London, Ontario, Canada adopted the Downtown Millennium Plan as a framework for the city?EUR??,,????'???s downtown revival. A key component was the Forks of the Thames Revitalization Plan, developed with the goal of making the downtown and Forks area a highly attractive and enjoyable place that would attract more residents and visitors.

The Forks site was chosen because of its physical and historical relationships with the city and the Thames River. It is situated amongst some of the city?EUR??,,????'???s most significant buildings: the Labatt property, one of the first commercial buildings; Eldon House, the city?EUR??,,????'???s oldest residence; and the Middlesex County Courthouse, the original administrative building for the district. The Thames, which is in close proximity to the downtown, has a rich industrial history, including a former mill and millrace, and an association to the former White Sulphur Springs and Baths.






The Forks of the Thames Revitalization Plan included a formal waterfront promenade; recreation trails and pathways; safe access points to the river; an amphitheatre for staged events; naturalized areas; a concession building; a children?EUR??,,????'???s playground and waterplay area; and an urban plaza.


Working with a consulting team led by PMA Landscape Architects, the City Parks Planning Department developed a master plan to encompass renovations to the more passive green space to the north (Harris Park), and the more intensely programmed site to the south (Ivey Park). Key improvements included a formal waterfront promenade; recreation trails and pathways; safe access points to the river; an amphitheatre for staged events; naturalized areas; a concession building; a children?EUR??,,????'???s playground and waterplay area; and an urban plaza. Incorporated into these spaces would be educational displays, and plaques and signage that narrate the environmental, historical, cultural and social aspects of the river and the Forks.

DESIGN DEVELOPMENT OF THE URBAN PLAZA AND SPRAY PAD

The first phase and highlight of the master plan included the design and development of the urban plaza and children?EUR??,,????'???s spray pad. For the detailed design stage, PMA was retained to lead a team of designers, including landscape architects and architects and civil, electrical, structural and mechanical engineers. The consulting team worked in close collaboration with the city planners, historians, and technical advisors.






Embedded in this stainless steel, twisted rail is a small and mischievous tickle spray. The shape of the rail suggests the meandering form of the river. The tall structure drops great quantities of water on children?EUR??,,????'???s heads, while the fountain jet is eternally spouting



img
 








The site will provide an area for large crowds and seating, whether for spontaneously gatherings, or for special events, such as the annual fireworks display. It will also include a children?EUR??,,????'???s waterplay area. The theme of the site is the symbolic associations to the Thames River?EUR??,,????'???s Sulphur Springs and Baths by various interactive experiences with water.

The site had a variety of access and grading challenges. The highest point and easternmost limit is the Middlesex Courthouse and parking lots, through which one point of entry was created. An existing grassy slope meets the groundplane of Ivey Park, approximately 6.5 meters below the edge of the parking lot. The design team aimed to provide fluid and fully accessible entries into the site from the downtown core. The threshold between the city and the Forks area had to be physically seamless, and yet visually make evident that one is entering a special domain.

While the significant grade change from the city to the river proved challenging, it also provided opportunities for dramatic sequences and spaces. The design team deliberated how to resolve the grade change between the courthouse parking lot and the plaza. Several concepts were developed incorporating varying degrees of terracing and retaining structures.






The concrete seatwall has cascading waterfalls activated by touch-sensors, and a series of fan spray heads shooting water horizontally. Various misters and jets propel water from the colored concrete groundplane.


The simplest and most dramatic solution was to create a single, curved retaining wall to provide an overlook of the plaza and a panoramic view of the river. At a maximum 2.5 meter height, the wall would enclose the newly developed area that includes the plaza and children?EUR??,,????'???s splash pad. The material palette of the wall, the colored paving pattern, site furnishings, and lighting will combine to reinforce the uniqueness of the experience and site.

INTERACTIVE FOUNTAIN PLAZA AND WATERWALL

We encouraged unique relationships with water in a variety of ways. Water would be used at different volumes to heighten the sensory experiences via sound, sight and touch.

It was a priority to ensure that people could access water and individually interpret associations with the river. In the overlook seating area, a water bench was designed to act as a seatwall and gentle waterfall. Rhythmic openings in the ?EUR??,,????'??seat?EUR??,,????'?? of the wall allow people to touch the gently flowing water. The experience of touching the water in a slow and meditative manner harkens back to the use of the Forks area as a sulphur springs spa. The water would continue through metal troughs embedded into the concrete walkway and reveal itself again in metal troughs cantilevered from the wall.






Carnival Town, a large structure that consists of a trough dump that supports and dumps 50 gallons of water from a height of three meters; an elevated spray nozzle; and a Wild Willy (a spray nozzle on a pivot).


The waterwall contains four pronounced waterfalls that spill directly onto the plaza surface. Strip drains were embedded discreetly into the paving along the colored bands of concrete. At the intersections of the colored bands are fountain jets programmed with a variety of jet styles and heights. Touch-sensor activators located at the terminuses of the retaining wall trigger the choreography of water, from the water bench to the water wall, to the fountain jets. The height and style of the fountain jets are determined by the number of times the sensor is activated and the amount of pressure applied. The duration of the fountain jets was calculated to match the approximate time it takes a person to walk from one sensor to the other.






A significant grade change from the city to the river resulted in the design of this waterwall, which provides an overlook of the plaza and a panoramic view of the river.


The plaza has a lively and ever-changing experience with water flowing, falling, and dancing. A bold sign that describes a historical synopsis of the Forks provides a backdrop to the display of water, evoking a feeling of celebration and pride. There is an elegant and civic quality to the space. The interactive nature of the water and its accessibility is a subtle gesture toward developing a sense of ownership of place.

?EUR??,,????'??Inspired by everyday water items such as garden nozzles, watering buckets, and hoses, the toys make use of water hydraulics and water-thrust energy to incorporate a changing dynamic in water play,?EUR??,,????'?? Melvin explained. ?EUR??,,????'??Theme can also be introduced to the toys, although our aim remains big water fun.?EUR??,,????'??






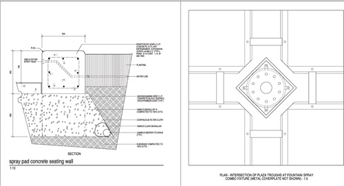
The renderings show the detail of the spray pad concrete seating wall and the intersection of plaza troughs with the spray combination fixture.


The overall layout of the splash pad consists of overlapping circular geometries. Several access points weave in and out from the main plaza and walkway into the pad for fluid movement and play. The concrete seatwalls and benches provide an abundance of seating. The placement of the splash pad was dictated by its proximity to the main plaza and its accessibility to the future main walk through Ivey Park. It is nestled within the park landscape, with the backdrop of large existing pines and planted berms that meet the seatwalls.

Similar to the Fountain Plaza, the children?EUR??,,????'???s splash pad was designed to create an entirely interactive experience and an element of surprise. The splash pad contains six touch-sensor activators dispersed around the pad, on the equipment, and on the concrete seatwall. While some of the equipment acts as stand-alone toys, other furnishings are functional components and water toys.






The designers believed it was essential to create an elegant and civic quality to the space, as illustrated by one of the multiple drains in the plaza.


The tickler rail is a separator from the plaza area; embedded in it is a small and mischievous tickle spray. The stainless steel rail is molded into a twisted organic shape, suggesting a symbolic form of the river. The concrete seatwall, similar to the water bench at the main plaza, has cascading waterfalls activated by touch-sensors, and a series of fan spray heads shooting water horizontally. Various misters and jets propel water from the colored concrete groundplane.

The freestanding water toys are not as discreet. Brightly colored equipment stands boldly within the splash pad, announcing its function as a marker for play. The tallest and most pronounced is Carnival Town, a large structure that consists of a trough dump (which supports and dumps 50 gallons of water from three meter height); an elevated spray Interactive Experience: nozzle; and a Wild Willy (a spray nozzle on a pivot). A smaller toy, the Dial-a-Spray, whose head sits at a height of 1.2 meters, encourages users to turn its driving-wheel-type head. Depending on its rotation, a stream of water will spurt out toward the user at various intensities and styles. Common items inspired the design of these components.






The seatwall trough provides access to the gently flowing water.


?EUR??,,????'??The Dial-a-Spray is like adjusting the nozzle on a garden hose,?EUR??,,????'?? Melvin explained. ?EUR??,,????'??And the Wild Willy is exactly the same tool they use in industries to clean the inside of pipes and vessels.?EUR??,,????'??

During the first summer of its operation, and coincidentally one of the hottest summers on record in Ontario, an amusing article appeared in the July 2, 2002 London Free Press (?EUR??,,????'??New Water Park Cool?EUR??,,????'??). The article described two office people finding relief at the Forks Splash Pad: ?EUR??,,????'??Steve and I, clearly the oldest people there by a good 15 years, sheepishly approached the first big yellow button under what looked like a Water Pik showerhead on steroids, and tentatively pressed it. ...Suitably soaked, we pressed every button we could find and gleefully allowed every fountain head to do its thing.?EUR??,,????'??

Collectively, the various jets, streams, misters, ticklers, and dumps provide for a visually and physically stimulating environment for people of all ages.






The waterwall at the main plaza contains four pronounced waterfalls that spill directly onto the plaza surface. Strip drains were embedded discreetly into the paving along the colored bands of concrete.


The ability of water to successfully draw attention derives from basic human curiosity and sensory stimulation. PMA pursued the expression of water as narrative of local history, current civic pride, and play. The first phase of the Forks of the Thames Revitalization Plan uses water as a driving element to gather people for the social, cultural and educational benefit of the public.

INTERACTIVE CHILDREN?EUR??,,????'???S SPRAY PAD

The development of waterplay environments as a stimulating and water-efficient alternative to wading pools has been a specialty of PMA principal Jim Melvin. Melvin takes pride in creating unique spray pad toys that are highly interactive and dynamic. Similar to the plaza fountain jets, the design of these unique pieces of equipment is a collaborative effort between PMA and Rob Brogee, water manager of Resicom Contracting and specialist in spray pads.

From conceptual sketches and discussions, Brogee refined Melvin?EUR??,,????'???s designs to consider safety, water efficiency, maintenance and cost, while remaining true to the intended impact and aesthetic.

Design Team:

  • Jim Melvin, Ruedi Hofer, Fung Lee, Thomas Brocklebank
    PMA Landscape Architects www.pmalarch.ca
  • Gregg Barrett, Andrew Macpherson
    City of London Parks Planning Department

Construction Supervision:

  • Jim Vafiades, Vafiades Landscape Architects
  • Art Lierman, Art Lierman Landscape Architect

Mechanical and Waterworks Consultant and Contractor:

  • Resicom Contracting Inc.

Engineer Consultants:

  • Aquafor Beech Limited (civil engineers)
  • Integrated Engineering (electrical engineers)
  • Stephenson Engineering (structural engineers)

General Contractor:

  • Pacific Paving Ltd.

Concrete Subcontractor:

  • UCC Group Inc.

Fung Lee is a Senior Designer and Project Manager at PMA Landscape Architects. She was involved in the detailed design of the Forks of the Thames Phase One works.


img