ADVERTISEMENT
Restoration of Urban Creek a Success11-01-03 | News
img
 
By Kevin MacKay, Principal
Jones & Stokes Ecosystem Restoration Group Leader

The basis for planning and implementing a restoration project can be as diverse as the habitats that are in need of restoration. For example, many stream restoration projects are initiated by public agencies to mitigate the impacts associated with implementing flood management, stream bank protection, or erosion control projects. These projects often provide agencies with the opportunity to meet the basic project objectives of improving flood conveyance capacity or protecting infrastructure, while also restoring fully functioning, self-sustaining riparian and aquatic habitats.

Jones & Stokes and Northwest Hydraulic Consultants, both of Sacramento, California were selected by the Santa Clara Valley Water District to provide restoration planning and design, environmental and regulatory compliance, construction oversight, and post-construction monitoring services for the Guadalupe Creek Restoration Project located in San Jose, CA. Because of the need to meet very stringent permitting requirements established by U.S. Fish and Wildlife Service and NOAA Fisheries, and challenging site conditions, such as poor soil, incised channels, and low groundwater table, the two firms were required to integrate engineering and ecological design to successfully develop innovative solutions for restoring instream aquatic and riparian habitats, stabilizing eroding stream banks and protecting existing infrastructure, and providing rearing habitat for steelhead and salmon.

Historically, the Guadalupe Creek floodplain had been altered by gravel mining; construction of levees and percolation ponds adjacent to the creek; a flood control project that included channel grading, deepening, and widening; and an instream recharge program. The creek?EUR??,,????'???s trapezoidal shape, deep incision, vertical cut, and eroding earthen banks had all been influenced by these past alterations and by natural geologic processes. As a result, the physical processes and ecological functions of the system were degraded, which, in turn, presented significant opportunities for restoration.


Guadalupe Creek was realigned to improve flood control in the watershed. Measures such as installation of coir logs, jute mats and straw bales, were undertaken during the construction of the realignments to control erosion.

The primary focus of the project was to restore approximately 6 acres of riparian vegetation, including willows, sycamores and cottonwoods, 13,000 linear feet of shaded riverine aquatic (SRA) cover, and instream aquatic habitat along a 1.6-mile reach of lower Guadalupe Creek to provide habitat for anadromous fish, including steelhead and fall-run chinook salmon. In addition, the project was designed to reduce the frequency of flooding in downtown San Jose.

Restoration plans for Guadalupe Creek were developed through extensive public and stakeholder involvement as well as consultation with the District, U.S. Army Corps of Engineers, U.S. Fish and Wildlife Service, NOAA Fisheries, the California Department of Fish and Game, Regional Water Quality Control Board, and local environmental organizations.


(Enlarge) An aerial photo shows the geomorphic reaches of the Guadalupe Creek that were part of the Guadalupe Creek Restoration Project. In Reach 1, the project emphasized planting existing surfaces. In Reach 2, the existing planform of the creek was generally maintained. Reach 3 focused on modifying the existing chanel and floodplain, and Reach 4 pre-project conditions that supported significant SRA cover vegetation and aquatic habitat.

The agencies involved in the project had to address the numerous concerns that were raised about the potential success/failure of the mitigation efforts, the potential for further riparian losses as the result of future flood control projects, and uncertainty as to the need for additional flow releases to assure protection of beneficial uses.

These issues were addressed to the maximum extent possible in project design and in mitigation program design. Also, a mitigation and monitoring program provided for an extensive monitoring program and a technical review process to develop corrective measures to address any unforeseen factors that could limit mitigation program success. In addition, a collaborative process of interested parties in the watershed has been tapped to address the need for additional flow releases.


Detail view showing crib wall construction. Crib walls were placed along the creek to protect the infrastructure.


This Baseline Geomorphology and Fisheries Habitat map shows features of the project including: low flow channel (light blue); bar (dark blue); slope (pink); undercut bank (gray); and bank erosion (blue-green);

During project construction, approximately 42,000 cubic yards of material were excavated and removed to create floodplain surfaces and to reduce the potential for channel bank erosion and bed degradation, promote local deposition of finer grained sediments, and create conditions suitable for native riparian vegetation plantings and natural recruitment. Additionally, nearly 2,500 linear feet of existing stream channel was shifted to protect existing infrastructure in areas subject to bank erosion, and to increase sinuosity, channel complexity, and enhance instream aquatic habitat.


Construction oversight of crib wall with root wads. Cabling and overlap between logs are important to the success of the structure and should be field confirmed.


Detail view showing debris jam biotechnical bank stabilization treatment. When possible, discarded logs from the site were recycled as part of the debris jam.


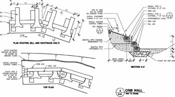
A constructed crib wall in place along the Guadalupe Creek is shown. In order to protect the existing infrastructure, approximately 725 linear feet of biotechnical bank protection (crib walls) was installed. These structures also provided instream cover, stabilized eroding banks, and provided suitable planting sites for SRA cover vegetation.

The project?EUR??,,????'???s highly urbanized setting, which included a major road along the south bank, a series of percolation ponds for water supply on the north bank, abundant residential development, and two major bridges, provided the consultant team with the difficult challenge of restoring the creek?EUR??,,????'???s natural physical and ecological processes while protecting existing infrastructure and maintaining sufficient flood conveyance capacity. To protect the existing infrastructure, approximately 725 linear feet of biotechnical bank protection (e.g., crib walls, rootwads) was installed. These bank protection structures also provided instream cover, stabilized eroding creek banks, and provided suitable planting sites for SRA cover vegetation. Coir logs and fabric were installed, and the areas were seeded with native grasses and forbs to protect newly excavated channel banks and floodplain terraces, and to control erosion and potential sediment input to the creek.


Native riparian plantings including willows, cottonwoods, sycamores and oaks have been planted along the Guadalupe Creek as part of the restoration process.

Natural construction materials such as boulders, logs, rootwads, and native shrub and tree transplants were also installed along the creek bed and banks to create pools and overhead cover for anadromous fish, to create protected planting areas on bar surfaces, and to increase the potential for recruitment of instream woody material (IWM) and entrapment of woody debris. Natural materials were used in an effort to provide input of organic material into the creek?EUR??,,????'???s system, which will break down over time to support the food chain within the creek. As part of the planning process, risks resulting from public use of the creek and surrounding areas, including construction of instream structures using cables and other anchors had to be considered and assessed. Proper methods and installation of Guadalupe Creek?EUR??,,????'???s erosion control measures avoided the possibility of a structure failure resulting in debris jams on downstream Urban Creek: (continued from page 44) bridges or failure of flood control measures caused by an excess of IWM.

The project planning and design was completed in June 2001, and project construction was completed in December 2001. Following construction, Jones & Stokes has been regularly monitoring key measures of project?EUR??,,????'???s success, including plant establishment and viability, bed and bank stability, water temperature, and fish use. Stringent criteria will continue to be monitored for 40 years and an adaptive management plan has been created so that criteria not met during monitoring will be mitigated. As of summer 2003, the project has successfully met all of the project objectives, with a 90-percent survival rate for plantings of willows, cottonwoods, sycamores, and oaks. The restoration has weathered the first few winter storm seasons without significant damage.


The successful Guadalupe Creek project restored approximately six acres of riparian vegetation, 13,000 linear feet of shaded riverine aquatic cover, and instream aquatic habitat along a 1.6 mile reach over lower Guadalupe Creek.

The complex Guadalupe Creek Restoration Project was a unique collaboration to re-establish vegetation, SRA cover, and stream channel alignments, and to create conditions suitable for the establishment and long-term viability of native habitats. Jones & Stokes and Northwest Hydraulic Consultants worked closely with the client and contractors to make an exceptional vision a reality while complying with numerous ecological and regulatory requirements. In addition, the project was the recipient of an Engineering Excellence Award from the Consulting Engineers and Land Surveyors of California (CELSOC) in 2003.

img