ADVERTISEMENT
Fontana‚Äö?Ñ?¥s Civic Center Park & Greenway‚Äö?Ñ?¨Roses are Red, White & Yellow04-01-05 | News
img
 

Fontana?EUR??,,????'???s Civic Center Park & Greenway?EUR??,,????'???Roses are Red, White & Yellow

by Stephen Kelly, regional editor


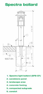
The ?EUR??,,????'??Great Lawn?EUR??,,????'?? is two acres of water-conserving Marathon 2 fescue meant to accommodate gatherings of up to 5,000 people. One-hundred and four 42-watt compact fluorescent copper hooded ?EUR??,,????'??Spectra?EUR??,,????'??? bollards (SPB-CF Architectural Area Lighting) border the lawn. The lighting for the California sycamore trees is the Bega 13-watt metal halide, model 8703.

As I prepared to write this feature on the Fontana Civic Center Park and Greenway it occurred to me that not only would most people across the U.S. not know where Fontana is, but even many Southern Californians might need a map to locate it. This is not unusual in the ?EUR??,,????'??south land,?EUR??,,????'?? whose multitudinous cities spread from the mountains to the sea to the desert.

I test my Fontana theory on Marcia, our accounts person and long-time Southern Calif. resident. ?EUR??,,????'??Marcia, where is Fontana??EUR??,,????'??

?EUR??,,????'??Oh, it?EUR??,,????'???s out there,?EUR??,,????'?? she said, sweeping her arm in a vaguely eastern direction, toward the distant peaks of our local mountains, whose snowy peaks present quite a lovely view.

?EUR??,,????'??In other words, you couldn?EUR??,,????'???t tell someone how to get there,?EUR??,,????'?? I surmise.

?EUR??,,????'??Right,?EUR??,,????'?? she admits.




The Great Lawn is bordered by benches custom made of slabs of Arizona ?EUR??,,????'??peach?EUR??,,????'??? sandstone, seated in concrete and attached via two 5/8'' x 22'' long bolts epoxied into the bench legs. A graffiti-resistant coating is applied to the stone. A strip of sandstone cobbles separates the lawn from the concrete perimeter.

Fontana is part of the ?EUR??,,????'??Inland Empire,?EUR??,,????'?? just west of San Bernardino (one leg of old Route 66) and east of the city whose name invariably raises a smile?EUR??,,????'??+Rancho Cucamonga. The area rests at the base of the San Bernardino National Forest and the San Gabriel Mountains. The local NASCAR fans know the city, as it is the home to the California Speedway.

The area didn?EUR??,,????'???t begin substantial development until the early 1900s when the Fontana Development Company acquired acreage and called it Rosena. It became Fontana in 1913. It was mostly an agricultural area: citrus, grain and grapes; chickens and pigs were also a going concern.

A shift occurred during WWII, when Fontana became a steel producer, an industry that dominated into the 1970s, but then declined. Kaiser Steel closed its mill in 1984, but the California Steel Co. still produces steel products in Fontana. The city?EUR??,,????'???s incorporated area is 36 square miles and boasts a population of 139,100. More than half the population lives in the north section of town, many in master planned communities.

My experience with Fontana is passing through on the way to nearby Lytle Creek at the eastern end of the San Gabriel Mountains. Lytle Creek played a role in the development of Fontana, as water from the creek was piped in for irrigation. We, my wife, the kids, a dog or two, used to hike Lytle Creek up the gravel wash to Bonita Falls, with me being the member of the expedition to venture out to the pool under the falls to let the cool tumbling water pummel my body. From there we?EUR??,,????'???d trek further up stream, seeking out deep pools of water where the canyons narrow and the sycamores shade the stream banks. It was along this route that we espied two long-horned sheep high up on a cliff, a majestic sight for urban dwellers.




The water feature for the round-about is a circular granite form with a sloped top, a kind of homage to the city founder, A.B. Miller, who had 500 miles of underground tunnels constructed beneath the city to channel irrigation water to the citrus orchards in the early 1900s. The top of the fountain is ?EUR??,,????'??cold spring black?EUR??,,????'??? granite?EUR??,,????'??? pavers cut 7/8'' x 1'9'' x 5' 9'' with a #10 diamond finish. The split-faced risers are of the same material, but with a polished finish. The apron is concrete with a light salt finish. The drive is also concrete.

Fontana Civic Center Park & Greenway

The city of Fontana hired RNL Design, headquartered in Denver with offices in Phoenix and Los Angeles, to take on the makeover of the civic center. Kurt Friesen, the team leader, and Chuck Boxwell, associate principal, were presented with four major design components: 1) a public space for the Fontana Civic Center; 2) first leg of a 20-mile inter-city multi-purpose trail system and greenway; 3) a gateway into the Civic Center; 4) a cultural center.


The 11-foot wide concrete walk (left), bordered on both sides with 2' of decomposed granite, incorporates Bega 8714MH single-port path lights. The median lights are Bega 8717MH. Washington navel orange trees are planted within the decomposed granite bands.

The Public Space

Fontana asked for a public gathering place in the civic center for concerts, arts and craft fairs, farmers markets, community festivals, and other large gatherings to accommodate up to 5,000 people, in contrast to Miller Park, an adjacent area for smaller get-togethers. The north end of the civic center housed the Fontana Police Department and would be the start of the Pacific Electric Inland Empire Trail. The Fontana Community Center and swimming pool were to the east; historic Miller Park and the Fontana Fire Department to the south; and the Fontana Library to the west.

The focal point of the new design, the ?EUR??,,????'??Great Lawn,?EUR??,,????'?? is two acres of water-conserving Marathon 2 fescue. Custom stone benches, bollard lights, regional sandstone cobbles, and native California sycamore trees frame the Great Lawn. It?EUR??,,????'???s a flexible gathering space and meant to last for generations.


The parking spaces for the trial area use 6' long x 7 1/4'' tall steel railroad tracks for wheel stops. Each track is welded in two place to metal plates anchored two feet below the asphalt surface.

The Pacific Electric Inland Empire Trail Greenway

RNL Design created the first leg of a 20-mile inter-city multi-purpose trail system and greenway along the existing Pacific Electric Inland Empire Trail right-of-way. The trail will eventually connect six communities.

The Fontana trail section is 80' wide and a mile long. Each segment of the trail was supposed to incorporate some cultural aspect of the city.

?EUR??,,????'??Because Fontana has a rich agricultural heritage of successful citrus orchards, the design philosophy for this trail segment was to create a cultural landscape celebrating this lost heritage,?EUR??,,????'?? explains Kurt Friesen. ?EUR??,,????'??Alternating bands of decomposed granite and water-conserving grasses comprise the ground plane, emulating the ordered structure of the citrus orchard landscape. A continuous bosque of Washington navel orange trees are planted within the decomposed granite bands, providing spectacular fragrant blooms in the spring, and edible fruit for trail users in the fall and winter.?EUR??,,????'??

One interesting feature along the trail is the series of large circular turf mounds that rise from the ground plane. It?EUR??,,????'???s visually appealing and people enjoy sitting or reclining on them. ?EUR??,,????'??The landforms create an undulating rhythm experienced by trail users to the south, as well as motorists to the north. The landforms recall the relationship of the Upper Santa Ana River Valley where the orchards once grew, and its juxtaposition to the steeply rising San Gabriel Mountain range to the north,?EUR??,,????'?? said Mr. Friesen.


Had Gertrude Stein lived to see the white, red and yellow roses along the Fontana Greenway Trail, she may have been tempted to revise her ?EUR??,,????'??a rose is a rose, is a rose?EUR??,,????'?? judgment. Well, that?EUR??,,????'???s a stretch, but Ingrid Bergman, ginger snaps, and St. Patrick roses, among others, bring plenty of variety, even for the jaded sensibilities of Madame Stein.





An arch of nine sloped-turf panels add an interesting element to the greenway. The central panel raises to 4 feet, but as you go away from the center they progressively diminish in height. (See turf panel detail.) A variety of grasses are used. On the flat is Marathon 2 fescue; sheep and hard fiscue are on the slopes, and a blend of grasses for the steep banks.

Civic Center Drive

The city required a gateway into the civic center and redesign of the main vehicular entry. In keeping with the Spanish meaning of Fontana (?EUR??,,????'??fountain?EUR??,,????'??), the city wanted a water features as an integral part of the entry. ?EUR??,,????'??Civic Center Drive includes one block between Sierra and Wheeler avenues, two water features flanking either side of the street, and a round-about water feature at the intersection of Civic Center Drive and Wheeler Avenue,?EUR??,,????'?? explains Mr. Friesen.

?EUR??,,????'??The design approach for Civic Center Drive was to create a versatile street that welcomes vehicular traffic, but could be used by pedestrians for block parties, festivals, or other functions when the street is closed.?EUR??,,????'??

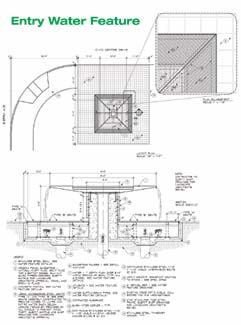
The water features flanking Civic Center Drive are square and constructed of regional stone and stainless steel, a ?EUR??,,????'??contemporary version of the traditional Spanish bowl fountain as desired by the client,?EUR??,,????'?? explains the landscape architect. The water feature for the round-about is a circular granite form with a sloped top. ?EUR??,,????'??It provides a sense of movement and animation,?EUR??,,????'?? notes the landscape architect. ?EUR??,,????'??With water cascading around its perimeter, the fountain evokes the image of water bubbling up from the earth, supplying irrigation water to the citrus orchards located along the greenway.?EUR??,,????'?? This is representative of the city?EUR??,,????'???s founding father, A.B. Miller, who in the early 1900s had some 500 miles of underground tunnels constructed beneath the city to channel irrigation water from Lytle Creek. This irrigation was the lifeblood for the orchards, a not uncommon story out west. According to the Morman Church, the very day Brigham Young and his followers arrived in Salt Lake, he directed the weary settlers to begin digging irrigation rows.




Twenty-three pole lights were specified for the project, twin-banner lighting pole assembles (?EUR??,,????'??Spectra?EUR??,,????'??? from Architectural Area Lighting) using 150-watt metal halide lamps. Cercidium hybrid ?EUR??,,????'??Desert Museum?EUR??,,????'??? Palo Verde trees were planted for the Great Lawn parking lot.

Fontana Historic Cultural Center

?EUR??,,????'??Initially, the client requested a trailhead serving the Pacific Electric Inland Empire Trail that provided parking and access to the trail,?EUR??,,????'?? explains Mr. Friesen. ?EUR??,,????'??However, as the project evolved, the site became a historic cultural center for the city, and today includes historic structures and landscapes important to the city?EUR??,,????'???s heritage.?EUR??,,????'??

The Fontana Historic Cultural Center encompasses the 1.5 acres surrounding the freight depot, built in 1915. The city plans to lease the depot to a bakery, restaurant or perhaps a winery. Once a suitable tenant is selected, the depot will undergo restoration. Just east of the depot is the relocated Historical Society Research Library, used by A.B. Miller as a real estate office in the early part of the 1900s. Stretched between these two buildings is the Memorial Rose Garden, which is not just for viewing enjoyment?EUR??,,????'??+it also sells roses. St. Anthony?EUR??,,????'???s, a small chapel built in 1925 by the Pagliuso family, has been relocated to the west of the depot. The Pagliusos had a vineyard south of Fontana. The chapel?EUR??,,????'???s turf area is a popular spot for picnics and weddings, and is surrounded by a vineyard of merlot grapes.

?EUR??,,????'??Surrounding the chapel are custom stone benches and native plantings on the north side of the Center that create a threshold between the trail and gardens, while a parking lot anchors the south edge, providing parking for trail visitors,?EUR??,,????'?? explains Mr. Friesen.

The native landscape of the San Gabriel mountains is largely evergreen chaparral and the planting selections for the Fontana Historic Cultural Center are in keeping with the native plants. ?EUR??,,????'??Palo Verde, western redbud, and Ceanothus are a few of the native species used,?EUR??,,????'?? specifies the landscape architect. ?EUR??,,????'??These native species create a framework for the historic structures, educate and inform visitors of the native landscapes of the region, are water-conserving, and complement the ordered agrarian orchard and vineyard landscapes they are adjacent to.?EUR??,,????'??






Flanking Civic Center Drive are modern versions of Spanish bowl fountains, constructed of Arizona peach sandstone with stainless steel bowls and concrete footings. The sandstone, doweled and expoxied in place, has a natural cleft face, slit face top and bottom edges and saw-cut quirk mitered corners. The pavers around the fountains are also sandstone. The grate, which has a locking mechanism, covers the catch basin, including drain pipes and 150 watt underwater uplightfixtures (PEM Model E150).

Project: Fontana Civic Center Park & Greenway

Landscape architect firm: RNL Design, Denver, Co., Phoenix, Los Angeles
Project lead designer: Kurt Friesen, associate, with associate Chuck Boxwell
Role of Landscape architect: team leader, lead designer from concept design through construction administration for all project elements
Project construction budget: $5.5 million

Consultants:
civil engineer: street design, grading, drainage, and utility documentation
electrical engineer: lighting and water features
structural engineer: underground pump vault, bench & light fixture footings
water feature consultant: engineering design for pumps, piping, etc.
irrigation consultant: irrigation design services




An interesting aspect of RNL Design?EUR??,,????'???s work was establishing a vineyard by the Fontana Historic Cultural Center. Merlot vines are planted, per the city, which apparently does not have the same opinion of the grape as Miles in ?EUR??,,????'??Sideways.?EUR??,,????'?? The posts (7' 4x4s) and cross arms (2x4s), connected by 7'' galvanized carriage bolts, are pressure treated. Five rows of foliage wire run through eye bolts. The soil surface is decomposed granite and drip irrigation lines are installed.
img