Models

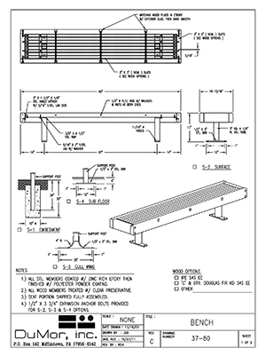
Bench 37-80

Available Downloads

   
   



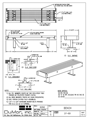
Bench 37-60

Available Downloads