PRODUCT DESCRIPTION

Often times a space is simply missing some character. Cre8Play develops original products that have the power to revive and transform your space into an experience. The difference is seen in the detail of our products, up close and personal; kids notice, adults notice and communities notice. Cre8Play selects materials that withstand the most extreme outdoor elements including a proprietary concrete blend for ultimate durability. Cre8Play chooses sustainable and recycled materials when possible and most of Cre8Play's materials have the ability to be repurposed. All products and environments meet state level, national and ADA guidelines.
Whether whimsy or realistic, Cre8Play will work with you to transform your space into a completely original experience. Cre8Play.com @cre8play

img
CRE8PLAY

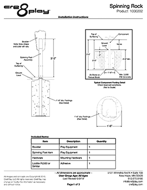
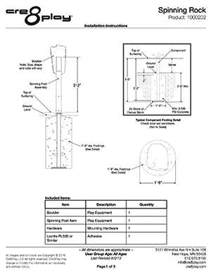
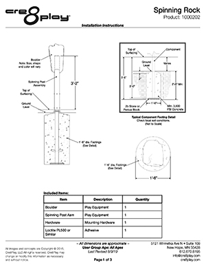
Spinning Rock

2401 Edgewood Ave S., Suite 200
St. Louis Park, MN  55426
612-670-8195
Fax: 612-486-7740
cre8play.com

Models

Spinning Rock picture 4

Available Downloads

  
   



Spinning Rock picture 3

Available Downloads

   
 



Spinning Rock picture 2

Available Downloads