Models

Versai Flat Top Single Swing Gate ???????? Arched

Available Downloads

    
 



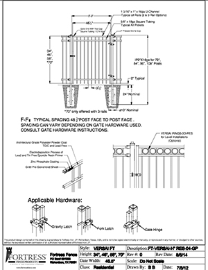
Versai Flat Top Single Swing Gate

Available Downloads

     
 



Versai Flat Top Double Swing Gate ???????? Compound Arch

Available Downloads

      



Versai Flat Top Double Swing Gate

Available Downloads