PRODUCT DESCRIPTION

Clear walls and viewing windows are becoming increasingly popular in pool design. Advanced engineering and manufacturing techniques are key elements in designing these types of specialty pools. Bradford has proven it's expertise in producing the most challenging vessels. This tiled stainless steel pool features a one-piece, 35-foot vanishing edge acrylic wall.

Bradford Products

Specialty Commercial Pools

2101 Enterprise Drive NE
Leland, NC  28451
910-791-2202
Fax: 910-791-0566
bradfordproducts.com




Models

Commercial ???????? Therapy Pool 37??????_-.21??????_ X 23??????_-.21??????_ sample

Available Downloads

       



Commercial ???????? Plunge Pool 11??????_-3.762??????_ X 5??????_-.279??????_ sample

Available Downloads

       



Commercial ???????? Plunge Pool 33??????_-.618??????_ X 18??????_-5.213??????_ sample

Available Downloads

       



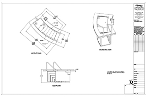
Commercial ???????? Pool with 20in Arc 54??????_-3.231??????_ X 42??????_-4.2??????_ sample

Available Downloads

       



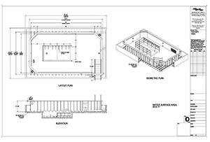
Commercial ???????? Custom Pool 123??????_-9.42??????_ X 123??????_-10.611??????_ sample

Available Downloads